Zvezdara, Crveni krst - Kajmakčalanska
3.5, 74m2, 3/4, EG, telefon, interfon, podrum
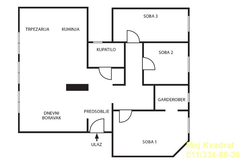
U ponudi za prodaju troiposoban stan od 74m2, u Kajmakčalanskoj ulici, na trećem spratu zgrade izgrađene 1939. godine koja nema lift, ali stepenište nije velikog nagiba, nije teško za penjanje.
Stan je dvostrano orijentisan, zapad i istok, veoma svetao. Sastoji se od prostranog dnevnog boravka sa kuhinjom i trpezarijom, jedne veće i dve manje spavaće sobe, kupatila, ulazog hodnika. Spavaći blok je izdvojen je manjim hodnikom. Visina plafona je 2.68m, etažno je grejanje. Iznad stana se nalazi stan.
U skladu sa projektom, u velikoj spavaćoj sobi, u delu gde je trenutno garderober, moguće je da se napravi još jedno kupatilo pripadajuće pomenutoj roditeljskoj sobi. Od dve manje sobe lako može da se dobije jedna komotna spavaća soba. Sve prostorije imaju prirodnu ventilaciju.
Zgrada ima samo četiri sparta sa ukupno 15 stanova. Stan ima pripadajući podrum, a renoviran je u dva navrata, 2016. i 2022. godine. Na zgradi je izrađena nova fasada i veoma se lepo održava. Stanari su izuzetno proaktivni. Na četvrtom spratu nalazi se otvorena terasa od 30m2 na kojoj je urađena hidro i termoizolacija, a koju koriste stanari trećeg i četvrtog sprata. Opremljena je garniturom za sedenje i sportskim rekvizitima. Elektro orman zamenjen je 2018. godine.
U stanu ostaje kuhinja sa kvalitetnom belom tehnikom, ugradni plakari su postavljeni na način da ne opterećuju životni prostor. Ostale stvari u skladu s dogovorom.
Postoji mogućnost iznajmljivanja garaže za 50 do 100 evra, ili kupovina nove u okviru zgrada koje su u procesu izgradnje.
Blizina Kalenić i Đeram pijace, Bulevara kralja Aleksandra, osnovnih, srednjih škola, vrtića. Izuzetna povezanost sa svim delovima grada.
Uknjižen na 74m2.
Agencijska provizija 2%.
Agent Svetlana Todorov: 066/239-141 (licenca br. 6305)